While the overall shape and shell of the house can not be changed, the inside of the house can be designed according to your own specifications if desired.
The drawing shows:
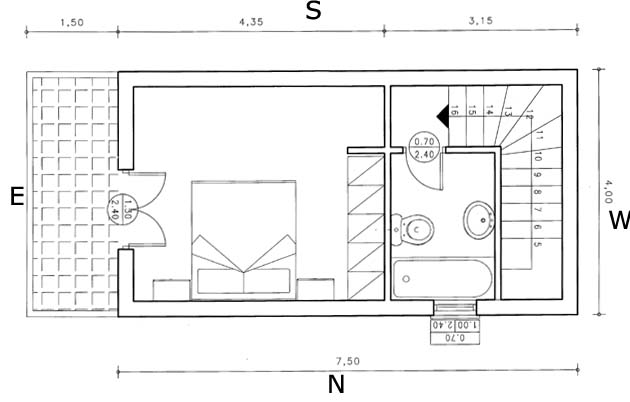
*On the ground floor is a spacious living room with kitchen and a master bedroom with bathroom.
*On the first floor above the bedroom is another master bedroom with bathroom. From here you have a wonderful view of the Saronic Gulf with the islands of Aegina, Methana and Angistri.
There is sufficient space in the garden to construct a carport and swimming pool.
Aan de omtrek en de vorm van het huis kunt u niets meer veranderen.
Binnenin het huis kunt u in overleg met onze architect de indeling naar uw smaak aanpassen.
Op de tekening ziet u:
*Op de begane grond is een royale living met keuken, een grote slaapkamer met badkamer met ligbad.
*Op de eerste verdieping boven de slaapkamer is nogmaals een grote slaapkamer met badkamer. Daar heeft u een prachtig uitzicht op de Saronische golf met de eilanden Aegina, Angistri en Methana.
*In de tuin (sinaasappelboomgaard) van 900m2 is voldoende plaats voor een carport/garage en een zwembad.



